Law & Commerce Building

Saskatoon, Saskatchewan

1967

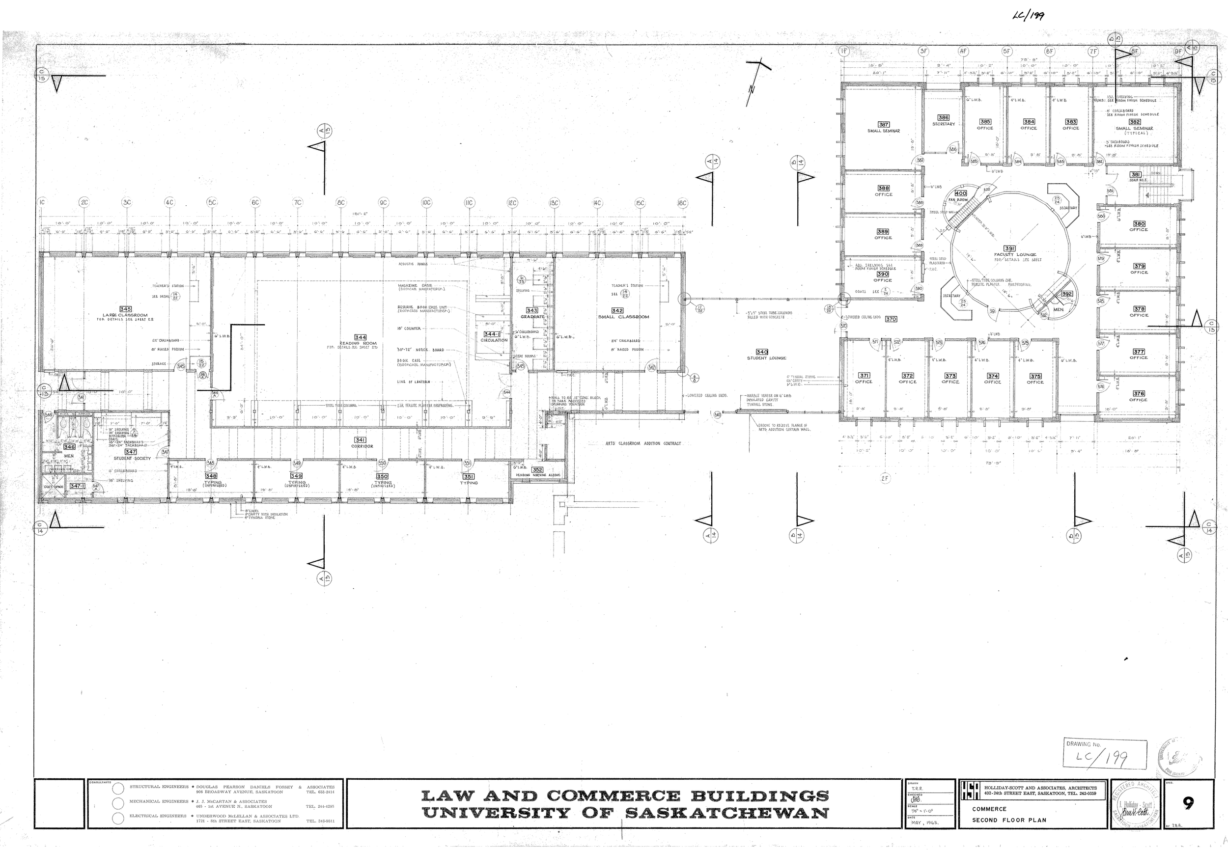
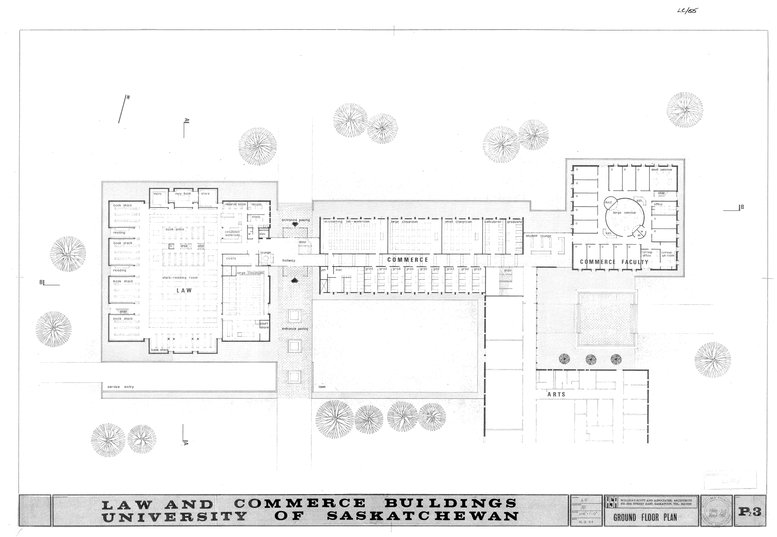
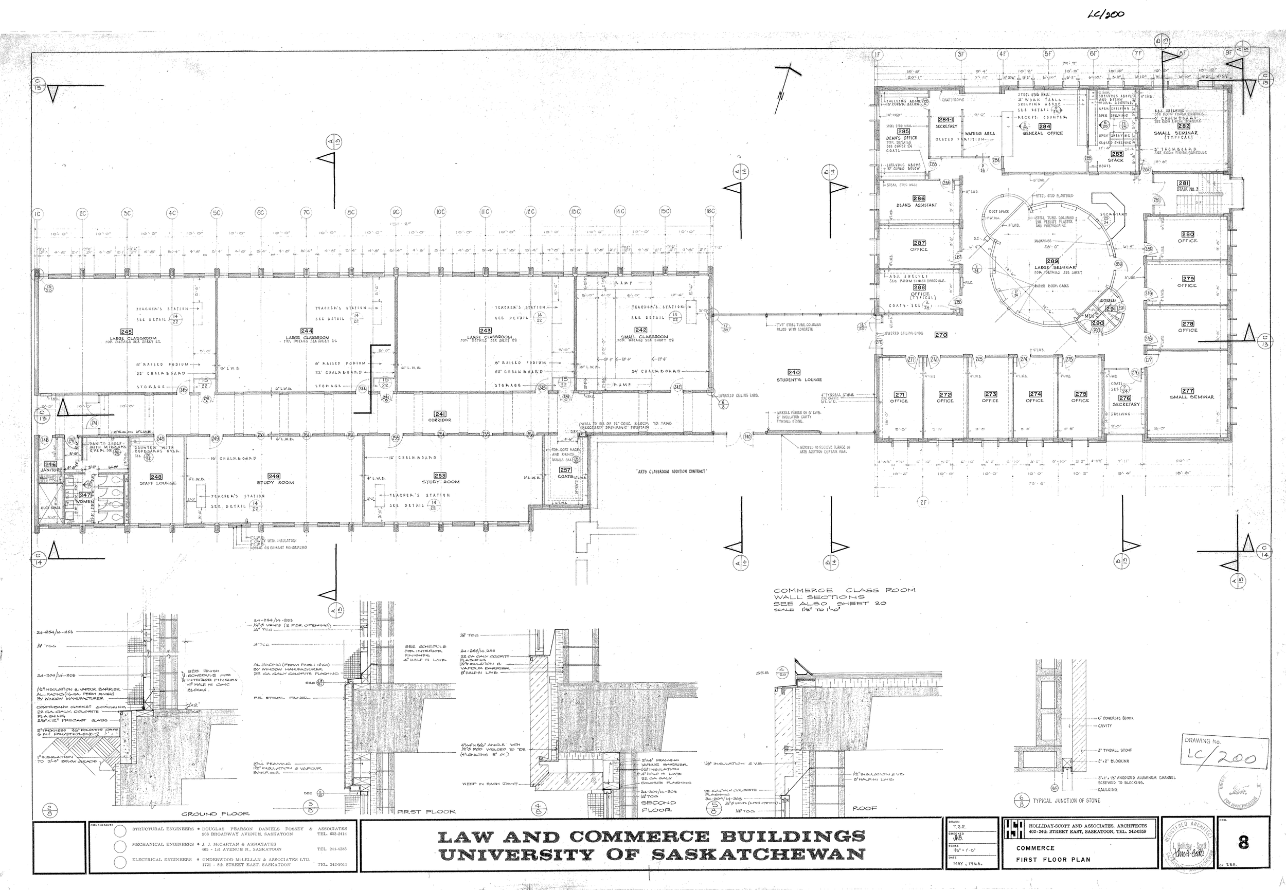
The Law and Commerce Buildings were designed and constructed as part of a single project between 1965 and 1967. Their architect was John Holliday-Scott of the Saskatoon firm Holliday-Scott & Associates. Holliday-Scott was one of the most accomplished architects of his generation working in Saskatchewan, and the Law Building, in particular, is one of his best works. In this and other projects such as the Dentistry Building and the Lutheran Seminary, Holliday-Scott took the traditional architecture of the University of Saskatchewan and translated it into a contemporary architectural language of his own invention. The Law Building has heritage significance as perhaps the best example of the work of this exceptional architect, and as one of the best examples of Modern architecture at the University of Saskatchewan.

“University of Saskatchewan Heritage Register”, Megan Fritzler, Andrew Wallace, September 2013